Ansprechende 2-Zi.-Wohnung mit Balkon im besonders begehrten Stadtteil Schwachhausen
28213 Bremen, Etagenwohnung zur Miete
Objektdaten
-
Objekt ID12362_008
-
ObjekttypenEtagenwohnung, Wohnung
-
Adresse28213 Bremen
-
Etage2
-
Etagen im Haus4
-
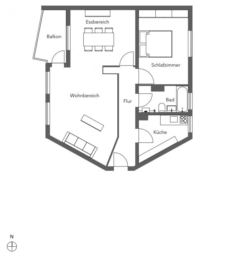
Wohnfläche ca.68,09 m²
-
Zimmer2
-
Schlafzimmer1
-
Badezimmer1
-
Balkone1
-
HeizungsartEtagenheizung
-
Wesentlicher EnergieträgerGas
-
Baujahr1953
-
Kaution2.250,00 EUR
-
Kaltmiete750,00 EUR
-
Miete pro m²11,01 EUR
-
Betriebskosten brutto200,00 EUR
-
Warmmiete950,00 EUR (zzgl. Heizkosten)
Ausstattung / Merkmale
- ✓ Balkon
Energieausweis
-
EnergieausweistypVerbrauchsausweis
-
Gültig bis28.12.2032
-
GebäudeartWohngebäude
-
Baujahr lt. Energieausweis1953
-
PrimärenergieträgerGas
-
Endenergieverbrauch122,60 kWh/(m²·a)
-
EnergieeffizienzklasseD
Objektbeschreibung
Beschreibung
Dieses Mehrfamilienhaus im Bremer Stadtteil „Schwachhausen“ wurde 1953 errichtet. Es handelt sich um eine gepflegte Immobilie mit zwölf Wohneinheiten. Sämtliche Wohnungen überzeugen durch eine gute Raumaufteilung. Jede Wohnung verfügt über einen Balkon. Ein eigener Kellerraum, eine Gemeinschaftswaschküche mit eigenem Waschmaschinenanschluss, eine Fahrradabstellmöglichkeit sowie ein Garagenhof runden das Gesamtbild ab.
Ausstattung
Die hier angebotene 2-Zi.-Wohnung präsentiert sich in einem gepflegten Zustand und wird renoviert an den neuen Mieter übergeben. Im Hinblick auf die Ausstattung möchten wir u.a. auf nachfolgende Details hinweisen:
-Laminat in sämtlichen Wohn- und Schlafräumen
-Separate Küche mit cremefarbener Einbauküche
-Weiß gefliestes Bad mit Badewanne, Waschbecken, WC und natürlichen
Belichtungsverhältnissen
-Eigener Waschmaschinenanschluss in der Waschküche im Kellergeschoss
-Eigener Kellerraum
-Fahrradabstellmöglichkeit im Kellergeschoss
-Garage Nr. 13 (zzgl. 95,00 € monatlich)
Lage
Das Mietobjekt befindet sich in einer verkehrsberuhigten Wohnstraße im besonders begehrten Stadtteil "Schwachhausen". Die Infrastruktur ist als sehr gut zu bezeichnen. Einkaufsmöglichkeiten für den täglichen Bedarf sowie eine Anbindung an den Öffentlichen Personennahverkehr (z. B. Straßenbahnlinie 6) sind in wenigen Minuten zu Fuß zu erreichen. Der Bürgerpark mit seinen vielseitigen Freizeitmöglichkeiten sowie das Sportzentrum am Baumschulenweg sind ebenfalls nur wenige Minuten mit dem Fahrrad entfernt.
Die ungefähre Position der Immobilie auf Google Maps ansehen (Link auf externe Website)
Kontaktdaten
-
NameFrau Katja Bolte
-
AdresseKommodore-Ziegenbein-Allee 3
28217 Bremen -
E-Mail Zentrale
-
E-Mail Direkt
-
Tel. Durchwahl
-
Mobil











