Hochwertige 3-Zi.-Wohnung mit zwei Balkonen
28217 Bremen, Etagenwohnung zur Miete
Objektdaten
-
Objekt ID1606_005
-
ObjekttypenEtagenwohnung, Wohnung
-
Adresse28217 Bremen
-
Etage1
-
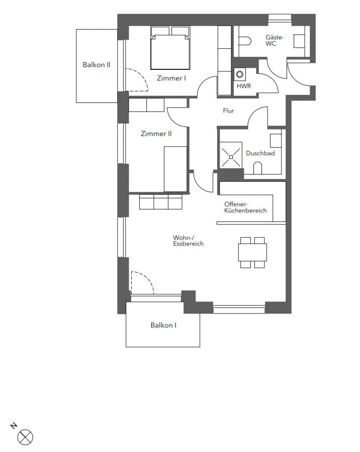
Wohnfläche ca.94,33 m²
-
Gesamtfläche ca.94,33 m²
-
Zimmer3
-
Schlafzimmer2
-
Badezimmer1
-
Separate WC1
-
Balkone2
-
HeizungsartFernwärme
-
Baujahr2017
-
Kaution3.900,00 EUR
-
Kaltmiete1.300,00 EUR
-
Miete pro m²13,78 EUR
-
Betriebskosten brutto330,00 EUR
-
Warmmiete1.630,00 EUR
Ausstattung / Merkmale
- ✓ Balkon
- ✓ Gäste-WC
- ✓ Parkettboden
- ✓ Personenaufzug
- ✓ Separates WC
Energieausweis
-
EnergieausweistypBedarfsausweis
-
Gültig bis12.11.2028
-
GebäudeartWohngebäude
-
Baujahr lt. Energieausweis2017
-
PrimärenergieträgerKWK regenerativ
-
Endenergiebedarf73,00 kWh/(m²·a)
-
EnergieeffizienzklasseB
Objektbeschreibung
Beschreibung
Das im Jahr 2017 errichtete Mehrfamilienhaus in der Bremer Überseestadt besticht durch seine hochmoderne Architektur und die unmittelbare Lage an der Weser. In der Immobilie sind 33 Wohnungen unterschiedlicher Größe und zwei Gewerbeeinheiten vorhanden. Sämtliche Wohnungen überzeugen u.a. durch eine ausgezeichnete Innenausstattung. Je nach Lage der Wohnung steht den Bewohnern eine Terrasse, ein bzw. zwei Balkone oder eine Dachterrasse zur Verfügung. Ein Aufzug im Haus, ein eigener Abstellraum in den jeweiligen Geschossen, eine Fahrradabstellmöglichkeit sowie eine eigene Tiefgarage vervollständigen das Gesamtbild.
Ausstattung
Die hier angebotene, hochwertige 3-Zi.-Wohnung präsentiert sich in einem überaus guten Zustand. Im Hinblick auf die moderne Ausstattung möchten wir u.a. auf nachfolgende Details hinweisen:
- Eichenparkett in sämtlichen Wohn- und Schlafräumen
- Fußbodenheizung in der gesamten Wohnung
- Offener Küchenbereich mit weißer Einbauküche inkl. E-Geräten (E-Herd mit Ceranfeld, Backofen, Geschirrspülmaschine, Kühlschrank, Gefrierschrank)
- Stilvolles Bad (innenliegend) mit boden-gleicher Dusche, Waschbecken, WC und Spiegel
- Zusätzliches Gäste-WC mit natürlichen Belichtungsverhältnissen
- Hauswirtschaftsraum mit Waschmaschinen- und Trockneranschluss
- Bodentiefe Fensterelemente in der gesamten Wohnung
- Elektrische Raffstores vorhanden
- Kontrollierte Wohnungsbelüftung
- Videogegensprechanlage
- Zwei Balkone
- Aufzug im Haus
- Eigener Kellerraum Nr. 05
- Gemeinschaftsfahrradraum
Lage
Die Immobilie "RIVE" wurde 2017 errichtet und befindet sich in zweiter Reihe an der Weser im beliebten Stadtteil "Überseestadt". Die Überseestadt zeichnet sich u.a. durch eine überaus gute Infrastruktur aus. Einkaufsmöglichkeiten für den täglichen Bedarf, Cafés, Bars und Restaurants sowie eine Busanbindung sind in wenigen Minuten zu erreichen. Die Altstadt ist mit dem Auto nur ca. 8 Minuten entfernt.
Die ungefähre Position der Immobilie auf Google Maps ansehen (Link auf externe Website)
Kontaktdaten
-
NameFrau Katja Bolte
-
AdresseKommodore-Ziegenbein-Allee 3
28217 Bremen -
E-Mail Zentrale
-
E-Mail Direkt
-
Tel. Durchwahl
-
Mobil











